Aylesbury Grammar School Masterplan

UPB are working with Aylesbury Grammar School to develop a conceptual masterplan and spatial strategy for the development and growth of the school campus.

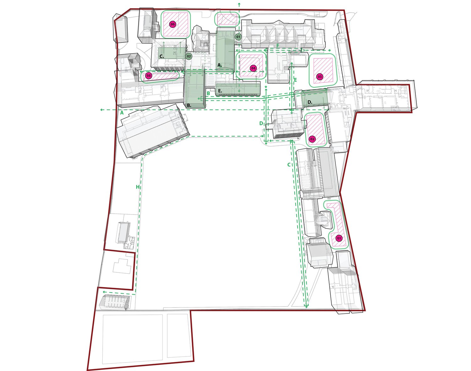
We are working closely with AGS to develop a vision for the school in 2030 as a leading education campus, and a strategic plan for how to achieve this vision. The project includes an in-depth analysis of the organisation of the existing campus and potential development sites; a consideration of sequences of internal and external shared spaces; re-thinking access in and out of the school and movement around the campus; and a reorganisation of the existing buildings into more consolidated clusters and centres of excellence.

At an architectural scale, the strategy includes an in-depth analysis of the existing building conditions; detailed proposals for building refurbishments and modifications; design proposals for new buildings and campus facilities; planning applications and fund-raising strategies.

Proposed New Reception

Proposed New 6th Form Study Centre

Proposed New School Library

Proposed New School Gym

0044
Aylesbury Grammar School Masterplan
Aylesbury, Buckinghamshire
Ongoing, 2015

UPB Team

Alex Warnock-Smith, Project Director
Yonatan Buchhandler, Project Architect
Matthew Jeniec, Project Architect